TOPへ
☆世田谷区・城南地区の不動産売買・賃貸の仲介、管理、コンサルティング☆
日商ハウジング株式会社 東京都知事免許(11)42535号
ニッショーに来よう  
0120-240-254   

物件情報
売買マンション
会社情報
求む。こんな売物件・貸物件探しています。
こんな売物件・貸物件
探しています。
売却物件募集中
無料簡易査定シート
新規オーナーさん募集中
空室募集依頼シート
日商ハウジング株式会社
〒157-0073
世田谷区砧3丁目5番9号
小田急線 祖師ヶ谷大蔵駅
徒歩13分
営業時間: 9:00~18:00
定休日: 水曜日・第2、4火曜日
TEL: 03-3416-1861
    0120-240-254
FAX: 03-3416-1455
Mail: info@nissho-housing.com
世田谷・砧で創業40年以上の実績。誠実な接客をモットーにしています。 地元ならではのネットワークをご利用ください。
賃貸全般 管理
駐車場 購入
売却 買換
住宅ローン 簡易査定
相続案件 税務相談
不動産にかかわることなら何でも相談してください。Eメールでのお問い合わせも承っております。

管理番号:11035
中古マンション
卓巳コーポ
6F部分・オーナーチェンジ
所在地 目黒区鷹番3丁目
価格 1,800 万円
交通 東急東横線「学芸大学」駅徒歩3分
外観写真
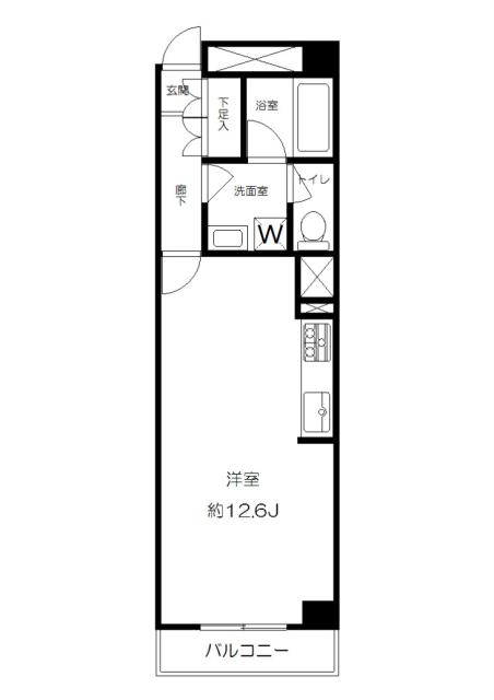
間取図 室内からの眺望 室内
専有面積 34.59 バルコニー面積 2.90
間取り 1R 築年月 昭和42年3月
土地権利 所有権 都市計画 市街化
用途地域 近隣商業地域・第1種中高層住居専用地域 構造 RC 造地上6階建
戸数 35戸 旧分譲会社 山仁建設株式会社
建築会社 山仁建設株式会社 設計会社
管理会社 管理形態 自主管理
管理費 9,000円 修繕積立金 6,000円
その他費用 駐車場
現況 賃貸中 引渡し 相談
設備 モニター付インターフォン・システムキッチン(IH・2口)・洗浄便座付トイレ・室内洗濯機置場等
備考 ※当該マンションはエレベーターがありません。
※月額10,500円で賃貸中です。

【取引態様】 媒介

※ご成約の際には所定の仲介手数料がかかります。
※図面と現況が異なる場合は、現況を優先させていただきます。
※万一成約済の場合はご容赦ください。

Copyright(C) 2003-2026 日商ハウジング株式会社 All rights reserved. ..